買いたい
能勢町下田尻 中古住宅
眺望×70坪。ゆとりを楽しむ一邸。
当社の視点で
見つけた魅力
・敷地約70坪のゆとりある土地
・北東側の眺望が楽しめる立地
・駐車3台可(庭を駐車スペースへ変更も可能)
・平成12年築/木造2階建て、室内たいへん綺麗
・1620サイズの広々ユニットバス
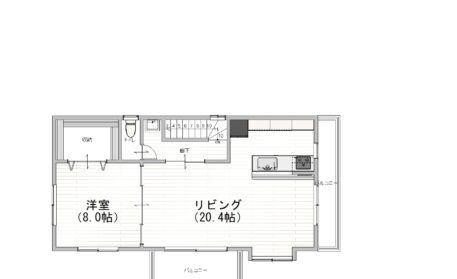
・2階リビング、1階ミニキッチン付き
・ライフライン完備(公営水道・浄化槽・個別プロパン)
・空家につき、即時引渡し可能
詳細情報
価格表
| 号地 | 面積 | 価格 | 売約 状況 |
|---|---|---|---|
| ーーー | 233.58㎡ | 1,180万円 | 販売中 |
周辺環境
緑が豊富 静かな住環境
-
能勢電鉄「山下」駅 バス30分 名月峠バス停まで徒歩9分
特徴
木造2階建て/眺望良好/日当たり良好/敷地面積70坪/ゆったり庭スペース/駐車スペース3台
販売概要
| 名称 | 広々とした庭スペースを活かした余暇の家 |
|---|---|
| 所在地 | 大阪府豊能郡能勢町下田尻227番78・77 |
| 交通 | 能勢電鉄線「山下」駅 バス30分 名月峠 バス停 より 徒歩9分 |
| 地目 | 宅地 |
| 用途地域 | 市街化調整区域 |
| 土地面積 | 233.58㎡ |
| 建ぺい率 | 60% |
| 容積率 | 200% |
| 建物構造 | 木造2階建て 建物面積 1階 62.37㎡ 2階 59.04㎡ 延べ床面積 121.41㎡ 平成12年3月築 |
| 総区画数 | 1区画 |
| 道路方位・幅 | 南側私道 道路幅員4m 西側公道 道路幅員4m |
| その他・特記事項 | 能勢小学校 能勢中学校 電気、上水(公営水道)、下水(浄化槽)、ガス:プロパン |
| 販売価格 | 1,180万円 |





















