買いたい
宝塚市市野上1丁目 中古戸建
阪急今津線「逆瀬川」駅まで徒歩5分 70坪の敷地に建つ純和風住宅
当社の視点で
見つけた魅力
阪急今津線「逆瀬川」駅まで徒歩5分。
道路との高低差もなく、アクセス・利便性ともに良好です。
シャッター付きガレージ完備(駐車1台分)。
※スペースの増設も可能です。
純和風の本格的な造りの邸宅で、
和室には書院が設けられており、格式ある和の佇まいが感じられます。
また、広縁もあり、その先には池のある美しい庭が広がります。
おもてなしも場として最適です。
リビングのウッドデッキは、アウトリビングとして多目的にご利用いただけます。
室内は大変丁寧にお使いで、状態良好です。
現況: 空き家
引渡し: 即時可能
詳細情報
価格表
| 号地 | 面積 | 価格 | 売約 状況 |
|---|---|---|---|
| 231.73㎡ | 6,630万円 | 販売中 |
周辺環境
阪急今津線「逆瀬川」駅まで徒歩5分 70坪の敷地に建つ純和風住宅
-
西山小学校 徒歩10分
-
光が丘中学校 徒歩21分
-
阪急「逆瀬川」駅 徒歩5分
特徴
駅まで徒歩圏内/眺望良好/閑静な住宅街
販売概要
| 名称 | 阪急今津線「逆瀬川」駅まで徒歩5分 70坪の敷地に建つ純和風住宅 |
|---|---|
| 所在地 | 宝塚市市野上1丁目7-27 |
| 交通 | 阪急今津線「逆瀬川」駅より徒歩5分 |
| 地目 | 宅地 |
| 用途地域 | 第1種低層住居専用地域 |
| 土地面積 | 231.73㎡ |
| 建ぺい率 | 50% |
| 容積率 | 100% |
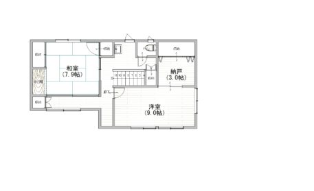
| 建物構造 | 木造瓦葺 2階建て 建物面積 1階 95.73㎡ 2階 57.33㎡ 延べ床面積153.06㎡ 平成9年3月築 |
| 総区画数 | 1区画 |
| 道路方位・幅 | 東側 4.4m |
| その他・特記事項 | 学校区:西山小学校、光が丘中学校 |
| 販売価格 | 6,630万円 |






















